AGÆì½¢Ìü

Loading...

XGND-10ÏäÐÍÀο¿Ê½½ðÊô¹Ø±Õ¿ª¹Ø×°±¸

²úÆ·ÐÎò


Ò»¡¢ÓÃ;

XGN¿Ú-10ÏäÐÍÀο¿Ê½½ðÊô¹Ø±Õ¿ª¹Ø×°±¸ÊÇÓÉÎ÷°²¸ßѹµçÆ÷Ñо¿Ëù¿ª·¢ºÍÑÐÖÆµÄ¸ßѹ³ÉÌ׿ª¹Ø×°±¸¡£×°±¸ËùÓÃÖ÷ÒªÒ»´ÎÔª¼þ¾ùÊôÖØÐÂÉè¼Æ £¬ÓëÏÖÔÚÖ÷ҪʹÓõÄÊÖ³µÊ½¿ª¹Ø¹ñºÍGG-1(A)FÐÍ¿ª¹Ø¹ñÏà±È¾ßÓнϸߵľøÔµË®Æ½ºÍ·À»¤Æ·¼¶ £¬ÄÚ²¿²»½ÓÄÉÈκÎÐÎʽµÄÏà¼äºÍÏà¶ÔµØ¸ô°å¼°¾øÔµÆøÌå £¬¶þ´Î»ØÂ·²»½ÓÄɶþ´Î²åÍ·(¼´²»¹Ü×°±¸ÔÚºÎÖÖ״̬Ï £¬±£»¤ºÍ¿ØÖÆ»ØÂ·ÊÇʼÖÕÒâ»áµÄX²úÆ·¸÷ÏîÖ¸±êÇкÏGB3906¡¶3-35kV½»Á÷½ðÊô¹Ø±Õ¿ª¹Ø¡·ºÍ¹ú¼Ê±ê×¼IEC298ºÅ³öÊéÎï¼°»úеµçÁ¦Á½²¿¶Ô¡°Îå·À¡±µÄÒªÇó £¬²úÆ·ÓÃÓÚ3-10kVµ¥Ä¸Ïß £¬µ¥Ä¸Ïß´øÅÔ·ϵͳÖÐ×÷Ϊ½ÓÊܺͷÖÅɵçÄܵĸßѹ³ÉÌ××°±¸¡£

¶þ¡¢Ê¹ÓõÄÇéÐÎÌõ¼þ

ÇéÐÎζÈÉÏÏÞ+40¡æÏÂÏÞ-25C(»§ÄÚ)¡£
º£°Î¸ß¶È10O0m¡£
Ïà¶Ôʪ¹ý»îƽ¾ùÖµ²»´óÓÚ95% £¬ÔÂÆ½¾ùÖµ²»´óÓÚ90%¡£
µØ¶¯ÁҶȲ»Áè¼Ý8¶È¡£
ûÓлðÔÖ¡¢±¬Õ¨Î£ÏÕ¡¢ÑÏÖØÎÛȾ,»¯Ñ§ÇÖÊ´¼°Ç¿ÁÒÕñ¶¯µÄ³¡ºÏ¡£
 
AGÆì½¢Ìü (Öйú´ó½) Apple Store


AGÆì½¢Ìü (Öйú´ó½) Apple Store

AGÆì½¢Ìü (Öйú´ó½) Apple Store

AGÆì½¢Ìü (Öйú´ó½) Apple Store 
 
 
Îå¡¢½á¹¹Óë·ÀÎó×°ÖÃ

1¡¢½á¹¹
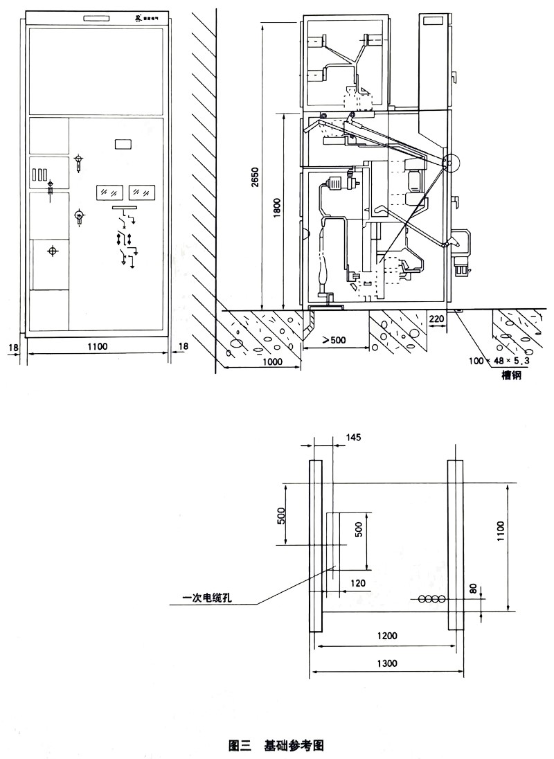
±¾¿ª¹Ø¹ñΪ½ðÊô¹Ø±ÕÏäÐͽṹ £¬¹ñÌå¹Ç¼ÜÓɽǸֺ¸½Ó¶ø³É £¬¹ñÄÚÓøְåÍÑÀë³É¶Ï·Æ÷ÊÒ¡¢Ä¸ÏßÊÒ¡¢µçÀÂÊÒ¡¢¼ÌµçÆ÷ÊÒ £¬²¢¿Éͨ¹ýÃÅÃæÉϵÄÊӲ촰ºÍÕÕÃ÷µÆÊÓ²ì¹ñÄÚ¸÷Ö÷ÒªÔª¼þµÄÔËÐÐÇéÐΡ£ÎªÌá¸ß¿ª¹Ø¹ñµÄÊÖÒÕÐÔÄÜ £¬¸÷Ö÷ÒªÔª¼þ¾ÙÐÐÁËÖØÐÂÉè¼Æ(Èç¶Ï·Æ÷¡¢Ðýתʽ¸ôÍÑÀë¹ØµÈ)¡£Æ¾Ö¤¹ñÌå°²ÅÅ,¼ÌµçÆ÷ÊÒ¿É×°Öü̵çÆ÷ £¬ÃÅÉÏ¿É×°ÉèÐźż̵çÆ÷¡¢Ö¸Ê¾ÒÇ±í¡¢ÐźŵÆ £¬×ª»»¿ª¹Ø×°ÖÃÓë²Ù×÷СÊÒ¡£ºó²¿ÎªÄ¸ÏßÊÒ¡£Ï²¿ÎªµçÀÂÊÒ £¬Óû§¿ÉÀû±ãµØ¾ÙÐнÓÏß¡£Ç°ÃæÎª¶Ï·Æ÷ÊÒ £¬Àû±ãÁË¿ª¹Ø¹ñµÄÄ¥Á·¡£¹ñÌåµÄÄÚ²¿»ú¹¹°Ý¼ûͼһ¡¢Í¼¶þºÍ²úƷ˵Ã÷Êé¡£
2¡¢·ÀÎó×°ÖÃ
¡°Îå·À¡±¹¦Ð§¼´:±ÜÃâÎó·Ö¡¢ÎóºÏ¶Ï·Æ÷;±ÜÃâ´ø¸ººÉÎó·Ö¡¢ÎóºÏ¸ôÍÑÀë¹Ø;±ÜÃâ´øµç¹ØºÏ½ÓµØ¿ª¹Ø:±ÜÃâ½ÓµØ¿ª¹Ø±ÕÊÊʱ½ÓͨµçÔ´;±ÜÃâÎóÈë´øµç¾àÀë¡£
±¾¿ª¹Ø¹ñ½ÓÄÉÁËÇ¿ÖÆÐÔ»úе±ÕËø·½·¨ £¬±ÕËø×°ÖÃÓÉÖ§×ù¡¢Ô²ÅÌ¡¢Ãæ°å¡¢Ëø°å¡¢ÊÖ±ú¡¢Áª¸ËµÈÖ÷Òª²¿¼þ×é³É £¬¾ßÓÐÐÔÄܿɿ¿¡¢¹¦Ð§ÆëÈ«¡¢½á¹¹¼òÆÓ¡¢²Ù×÷Àû±ãµÄÌØµã £¬´Ó¶øÇáÓ¯¡¢ÓÐÓõصִÎå·À¡±¡£
a¡¢´øºìÂÌ·­ÅƵĿØÖÆ¿ª¹Ø(KW¿ª¹Ø)ʹÓÃÓÚ¶Ï·Æ÷¼Æ»® £¬ÓÃÓÚ±ÜÃâÒò×ß´í¾àÀë¶øÎó·Ö¡¢ÎóºÏ¶Ï·Æ÷;
b¡¢Ö»ÓÐÔÚ¶Ï·Æ÷ȷʵ·Ö¶Ïºó £¬²Å»ª½«Ð¡ÊÖ±ú´Ó¡°ÊÂÇ顱λÖÃÀ­³öÓÒÐýÖÁ¡°·Ö¶Ï±ÕËø¡±Î»Ö᣷֡¢ºÏ¸ôÍÑÀë¹Ø¡¢±ÜÃâÁË´ø¸ººÉ·Ö¡¢ºÏ¸ôÍÑÀë¹Ø¡£±ÕËøÓë·´±ÕËøµÄ¿ÉÄæÐÔ¾ßÓÐË«ÖØµÄ·ÀÎó¹¦Ð§ £¬¼´:СÊÖ±ú´¦ÓÚ¡°·Ö¶Ï±ÕËø¡±Î»ÖÃʱ £¬Ö»Äܺϡ¢·ÖÉÏϸôÍÑÀë¹Ø,²»¿ÉºÏ¶Ï·,×èÖ¹ÁËÎóºÏ¶Ï·Æ÷;
c¡¢µ±¶Ï·Æ÷¼°ÉÏϸôÍÑÀë¹Ø¾ù´¦ÓÚºÏբ״̬ £¬Ð¡ÊÖ±ú´¦ÓÚ¡°ÊÂÇ顱λÖÃʱ £¬Ç°ºó¹ñÃŲ»¿É·­¿ª,±ÜÃâÎóÈë´øµç¾àÀë;
d¡¢µ±ÉÏ¡¢Ï¸ôÍÑÀë¹ØÎ´·ÖÕ¢ £¬½ÓµØ¿ª¹Ø¾Í²»¿ÉºÏÉÏ £¬Ð¡ÊÖ±ú²»¿É´Ó¡°·Ö¶Ï±ÕËø¡±Î»ÖÃÐýÖÁ¡°Ä¥Á·¡±Î»Öà £¬¿É±ÜÃâ´øµç¹Ò½ÓµØÏß
e¡¢½ÓµØ¿ª¹ØÎ´·ÖÕ¢ £¬ÉÏϸôÍÑÀë¹Ø¾Í²»¿ÉºÏÉÏ £¬¿É±ÜÃâ½ÓµØÏߺÏÉÏ¡¢Ï¸ôÍÑÀë²¢¡£
Ðж¯Ô­ÀíÈçÏÂ
a¡¢Í£µç²Ù×÷(ÔËÐСúÄ¥Á·)
¿ª¹Ø¹ñ´¦ÓÚ¡°ÊÂÇ顱λÖà £¬¼´ÉÏ¡¢Ï¸ôÍÑÀë¹Ø¡¢¶Ï·Æ÷´¦ÓÚºÏբ״̬¡¢Ç°ºóÃÅÒÑËøºÃ £¬²¢´¦ÓÚ´øµçÔËÐÐÖ®ÖÐ £¬ÕâʱµÄСÊÖ±ú´¦ÓÚ¡°ÊÂÇ顱λÖá£
ÏȽ«¶Ï·Æ÷·Ö¶Ï £¬ÔÙ½«Ð¡ÊÖ±ú°âµ½¡°·Ö¶Ï±ÕËø¡±Î»Öá£Õâʱ¶Ï·Æ÷²»¿ÉºÏÕ¢ £¬½«²Ù×÷ÊÖ±ú²åÈëϸôÀëµÄ²Ù×÷¿×ÄÚ £¬°´ÏÂС°ÑÊÖ £¬ÊÖ±ú´ÓÉÏÍùÏÂÀ­ £¬µ½Ï¸ôÀë·ÖբλÖÃ;È¡Ï̹ÂÊú £¬²åÈëÉϸôÀë²Ù×÷¿×ÄÚ £¬°´ÏÂС°ÑÊÖ £¬´ÓÉÏÍùÏÂÀ­ £¬À­µ½ÉϸôÀë·ÖբλÖÃ:ÔÙ½«²Ù×÷ÊÖ±úÄÃÏ £¬²åÈë½ÓµØ¿ª¹Ø¿×ÄÚ £¬¿ØÏÂС°ÑÊÖ £¬´ÓÏÂÍùÉÏÍÆ £¬Ê¹½ÓµØ¿ª¹Ø´¦ÓÚºÏբλÖà £¬Õâʱ¿É½«Ð¡ÊÖ±ú°âµ½¡°Ä¥Á·¡±Î»Ö᣿ÉÏÈ·­¿ªÇ°ÃÅ £¬È¡³öÃźó±ßÔ¿³×ÔÙ·­¿ªºóÃÅ £¬Í£µç²Ù×÷Íê±Ï £¬Ä¥Á·Ö°Ô±¿É¶Ô¶Ï·Æ÷ÊÒ¼°µçÀÂÊÒ¾ÙÐÐά»¤ºÍÄ¥Á·¡£
b¡¢Ë͵ç²Ù×÷(Ä¥Á·¡úÔËÐÐ)
ÈôÒÑÄ¥Á·Íê±Ï,ÐèÒªË͵ç,Æä²Ù×÷³ÌÐòÈçÏÂ:
½«ºóÃŹغÃËø¶¨ £¬½«Ô¿³×È¡³ö¹ØÇ°ÃÅ £¬½«Ð¡ÊÖ±ú´Ó¡°Ä¥Á·¡±Î»Öð⵽¡°·Ö¶Ï±ÕËø¡±Î»Öà £¬ÕâʱǰÃű»Ëø¶¨ £¬¶Ï·Æ÷²»¿ÉºÏÕ¢;ÓòÙ×÷ÊÖ±ú²åÈë½ÓµØ¿ª¹Ø²Ù×÷¿×ÄÚ £¬°´ÏÂС°ÑÊÖ £¬´ÓÉÏÏòÏÂÀ­ £¬Ê¹½ÓµØ¿ª¹Ø´¦ÓÚ·ÖբλÖÃ:½«²Ù×÷ÊÖ±úÄÃÏ £¬ÔÙ²åÈëÉϸôÀëµÄ²Ù×÷¿×ÄÚ £¬°´ÏÂС°ÑÊÖ £¬´ÓÏÂÏòÉÏÍÆ £¬Ê¹ÉϸôÀë´¦ÓÚºÏբλÖÃ,½«²Ù×÷ÊÖ±úÄÃÏ £¬²åÈëϸôÀëµÄ²Ù×÷¿×ÄÚ £¬°´ÏÂС°ÑÊÖ £¬´ÓÏÂÏòÉÏÍÆ £¬Ê¹Ï¸ôÀë´¦ÓÚºÏբλÖérÈ¡³ö²Ù×÷ÊÖ±ú £¬½«Ð¡ÊÖ±ú°âÖÁ¡°ÊÂÇ顱λÖà £¬Õâʱ¿É½«¶Ï·Æ÷ºÏÕ¢¡£
 
AGÆì½¢Ìü (Öйú´ó½) Apple Store

AGÆì½¢Ìü (Öйú´ó½) Apple Store 

Æß¡¢¶©»õÐëÖª:

¶©»õʱÓû§ÐëÌṩÏÂÁÐ×ÊÁÏ
a¡¢Ö÷½ÓÏ߼ƻ®±àºÅ¼°Ä¸Ïßϵͳͼ¡¢ÅÅÁÐͼ;
b¡¢¶þ´Î»ØÂ·½ÓÏßÔ­Àíͼ¡¢¶Ë×ÓÅÅÁÐͼ £¬Èç¶Ë×ÓÎÞÅÅÁÐͼʱ°´ÖÆÔì³§(Ö£¿ØµçÆø¹«Ë¾)»®¶¨;
c¡¢¿ª¹Ø¹ñÄÚµçÆ÷Ôª¼þµÄÐͺ𢹿¸ñÊýÄ¿;
d¡¢Ö÷ĸÏß¡¢Ö§Ö÷ĸÏߵIJÄÖÊ¡¢¹æ¸ñ,²»È»Æ¾Ö¤ÖÆÔì³§(Ö£¿ØµçÆø¹«Ë¾)»®¶¨¹©Ó¦;
e¡¢¿ª¹Ø¹ñʹÓÃÔÚÌØÊâÇéÐÎÌõ¼þ,Ó¦ÔÚ¶©»õʱÌá³ö;
f¡¢ÐèÒª¸½¼þ,±¸¼þʱӦÌá³öÆäÖÖÀàºÍÊýÄ¿¡£
 
AGÆì½¢Ìü (Öйú´ó½) Apple Store

AGÆì½¢Ìü (Öйú´ó½) Apple Store

AGÆì½¢Ìü (Öйú´ó½) Apple Store

AGÆì½¢Ìü (Öйú´ó½) Apple Store

AGÆì½¢Ìü (Öйú´ó½) Apple Store

AGÆì½¢Ìü (Öйú´ó½) Apple Store

AGÆì½¢Ìü (Öйú´ó½) Apple Store

AGÆì½¢Ìü (Öйú´ó½) Apple Store

AGÆì½¢Ìü (Öйú´ó½) Apple Store

AGÆì½¢Ìü (Öйú´ó½) Apple Store



 
 

ÍøÕ¾µØÍ¼